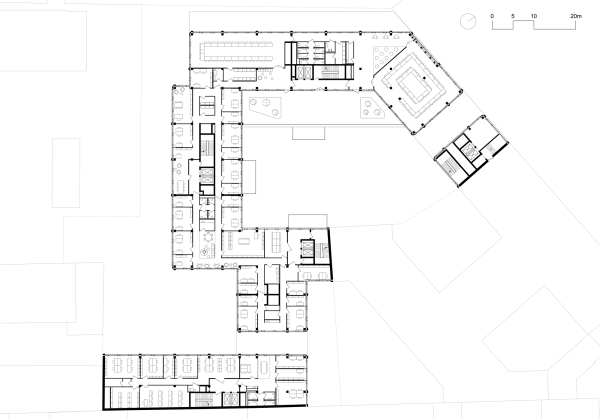
Bürobau von welter+welter architekten in Berlin
Bild 30/36
Grundriss 1. Obergeschoss
Bild: welter+welter architekten