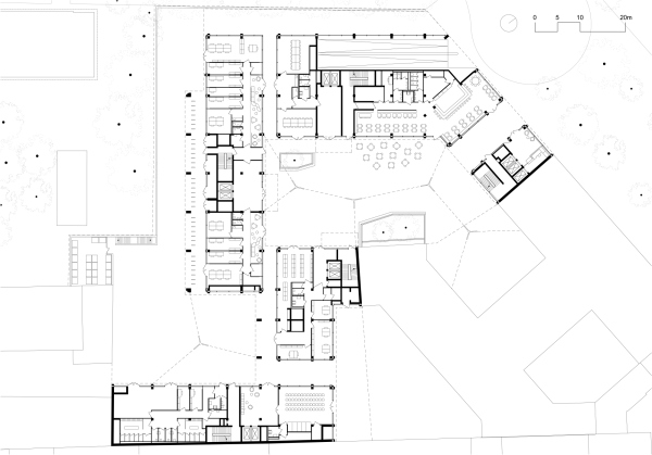
Bürobau von welter+welter architekten in Berlin
Bild 29/36
Grundriss Erdgeschoss
Bild: welter+welter architekten