Die Meldung in Bildern
Von Berlin nach Barcelona
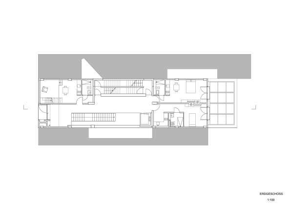
Boardinghouse von Heim Balp Architekten
Bild 14/18
Bild: Heim Balp