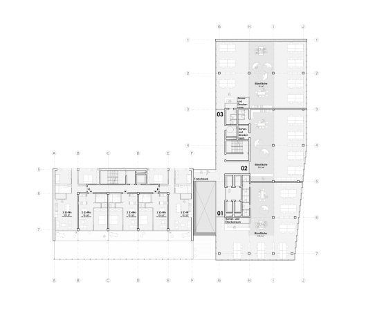
Ein 2. Preis: blauraum Architekten, Hamburg, Grundriss 1. Obergeschoss

Bild 37/56

Ein 2. Preis: blauraum Architekten, Hamburg, Grundriss 1. Obergeschoss

Bild: blauraum Architekten