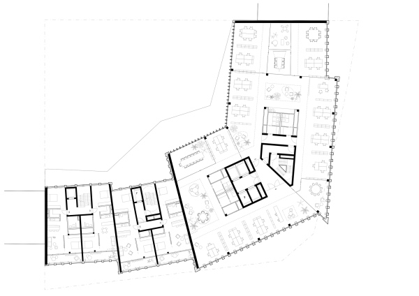
1. Preis: Barkow Leibinger, Berlin, Grundriss 2. Obergeschoss

Bild 13/56

1. Preis: Barkow Leibinger, Berlin, Grundriss 2. Obergeschoss

Bild: Barkow Leibinger