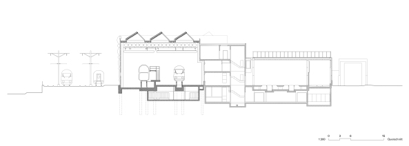
EM2N;Schweizerischen Bundesbahnen; SBB, Serviceanlage; Zürich-Herdern; Mathias Müller; Daniel Niggli; Faserzement; Fassade

Bild 14/15