Atelier Freienstein in Glarus
Bild 16/19
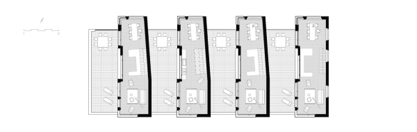
Grundriss 2. Obergeschoss
Bild: Reto Fuchs, Atelier Freienstein GmbH