Atelier Freienstein in Glarus
Bild 15/19
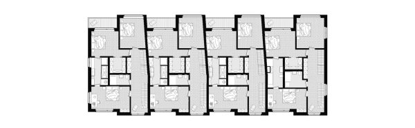
Grundriss 1. Obergeschoss
Bild: Reto Fuchs, Atelier Freienstein GmbH