Die Meldung in Bildern
Freiluftbühne im Burghof
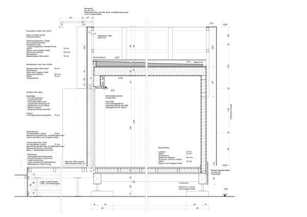
Atelier Fanelsa in Beeskow
Bild 17/17
Fassadenschnitt vertikal
Bild: Atelier Fanelsa