Die Meldung in Bildern
Freiluftbühne im Burghof
Atelier Fanelsa in Beeskow
Bild 16/17
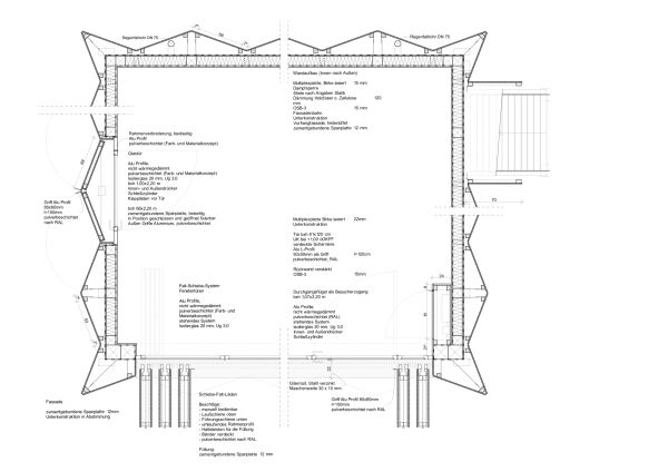
Fassadenschnitt horizontal
Bild: Atelier Fanelsa