Die Meldung in Bildern
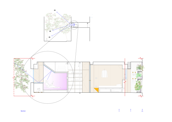
46 Quadratmeter, ein Arzt und ein Hund
Apartmentumbau in Madrid von Husos Arquitectos
Bild 14/16
Bild: Husos