Die Meldung in Bildern
Luxus auf kleinstem Raum
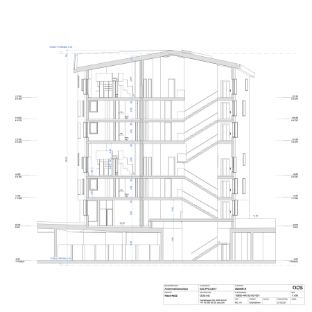
Apartmenthaus von OOS in Andermatt
Bild 14/18
Schnitt
Bild: OOS