Die Meldung in Bildern
Lernen im Holzcluster
opus Architekten in Mörfelden-Walldorf
Bild 20/24
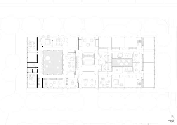
Grundriss Obergeschoss
Bild: opus Architekten