Die Meldung in Bildern
Altes Stadthaus mit neuer Holzkrone
mia2 Architektur in Linz
Bild 38/41
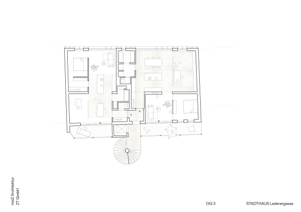
Grundriss 3. Obergeschoss
Bild: mia2 Architektur