Die Meldung in Bildern
Belgischer Beton
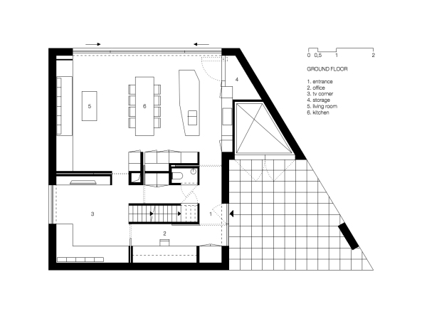
i.s.m.architecten: Wohnhaus im Norden von Brüssel
Bild 22/24