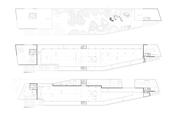
2. Preis: Werk Arkitekter (Kopenhagen), Grundrisse Obergeschosse

Bild 22/49

2. Preis: Werk Arkitekter (Kopenhagen), Grundrisse Obergeschosse

Bild: Werk Arkitekter