Die Meldung in Bildern
Bezahlbar am Boulevard
Zwei Wohnheime von LOHA in Los Angeles
Bild 33/39
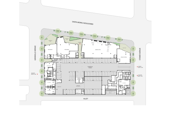
Grundriss Erdgeschoss Granville 1500
Bild: LOHA