Die Meldung in Bildern
Unter Bäumen
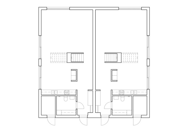
Zwei Wohnhäuser in Schweden von Hermansson Hiller Lundberg
Bild 18/39
Grundriss Erdgeschoss