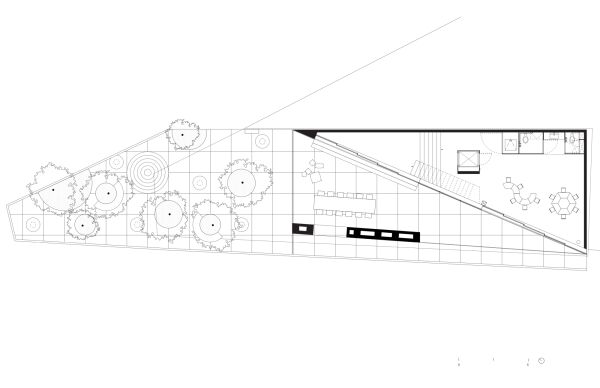
Grundriss Erdgeschoss Pilares-Zentrum im Bezirk Álvaro Obregó

Bild 37/40

Grundriss Erdgeschoss Pilares-Zentrum im Bezirk Álvaro Obregó

Bild: WORKac / IUA