Die Meldung in Bildern
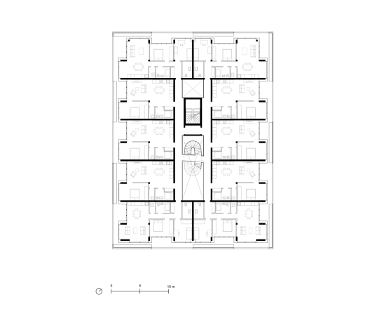
Offenes Wohnen im Thulekiez
Zanderroth Architekten in Berlin-Pankow
Bild 18/23
Grundriss Regelgeschosse 1, 3, 5