Die Meldung in Bildern
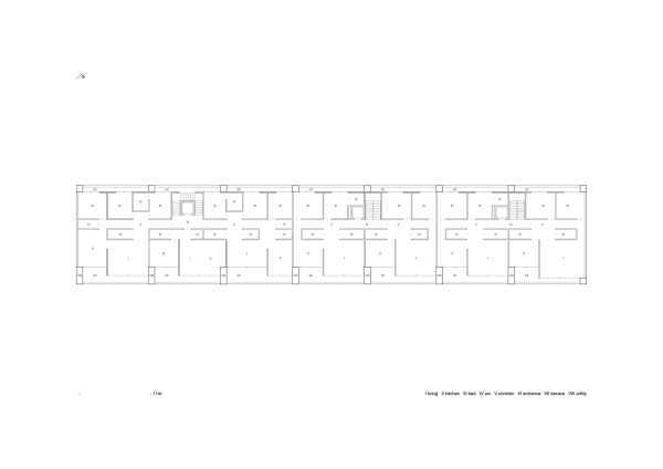
Wohnen im strengen Raster
Wunderwerk und DM Studio in Tiflis
Bild 15/18
Bild: Wunderwerk