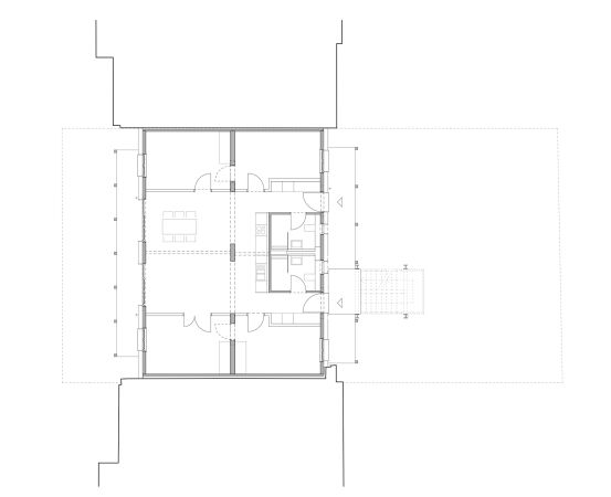
Wohnungsbau von foundation 5+ in Kassel
Bild 15/16
Grundriss Regelgeschoss
Bild: foundation 5+ architekten