Die Meldung in Bildern
Bullerbü in Basel
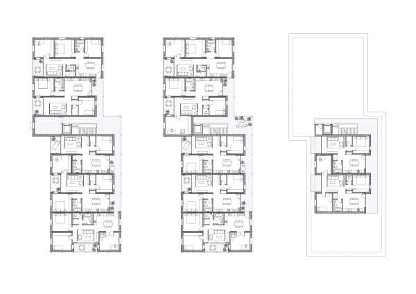
Wohnungsbau von Harry Gugger Studio
Bild 14/22
Grundrisse Haus A
Bild: Harry Gugger Studio