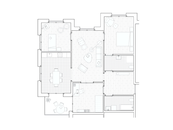
Wohnungsbau von Fruehauf, Henry & Viladoms in Lausanne
Bild 30/35
Wohnungsgrundriss Fünfzimmerwohnung
Bild: Fruehauf, Henry & Viladoms