Die Meldung in Bildern
In wachsender Nachbarschaft
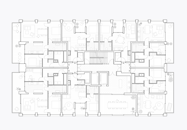
Wohnungsbau von BETA in Amsterdam
Bild 37/41
Grundriss 9. Obergeschoss
Bild: Beta