Die Meldung in Bildern
In wachsender Nachbarschaft
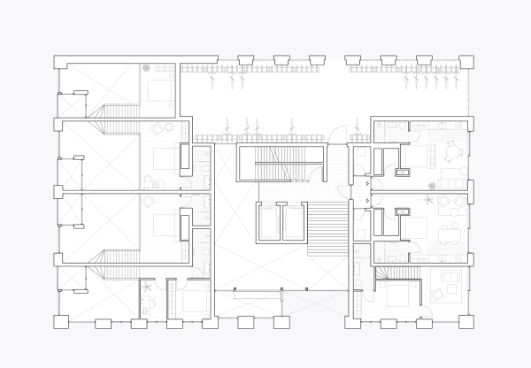
Wohnungsbau von BETA in Amsterdam
Bild 35/41
Grundriss 1. Obergeschoss
Bild: Beta