Wohnungsbau in Paderborn von Gröne Architektur
Bild 29/35
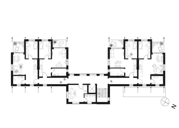
Grundriss 1. Obergeschoss
Bild: Gröne Architektur