Die Meldung in Bildern
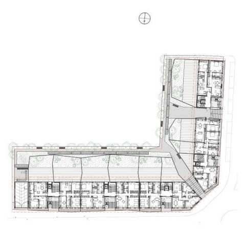
Viale Italia
Wohnungen von 5+1AA in Brescia
Bild 28/29
Haus 13, EG