Die Meldung in Bildern
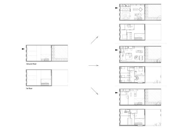
Individuell in der Peripherie
Wohnsiedlung von Kempe Thill in Arnheim
Bild 16/17