Die Meldung in Bildern
Individuell in der Peripherie
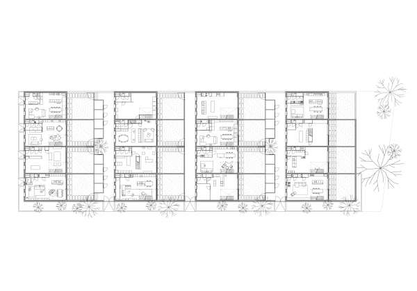
Wohnsiedlung von Kempe Thill in Arnheim
Bild 14/17
Grundriss: Erdgeschoss