Die Meldung in Bildern
Wintergärten am Wassergraben
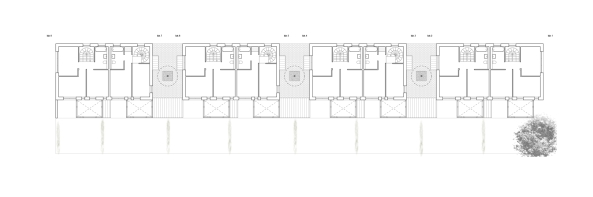
Wohnsiedlung in Illzach von Kuhn und Lehmann Architekten
Bild 14/17