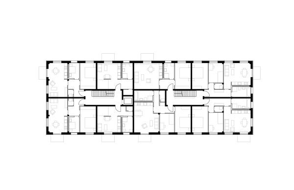
Wohnquartier von roedig.schop architekten in Berlin-Johannisthal
Bild 28/30
Obergeschoss Typ E
Bild: roedig.schop architekten