Die Meldung in Bildern
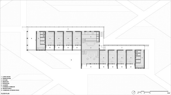
Zimmer für Ärzte
Wohnprojekt in Ruanda von Sharon Davis
Bild 20/23