Die Meldung in Bildern
Dem arktischen Klima trotzen
Wohnkomplex in Nuuk von Biosis
Bild 26/39
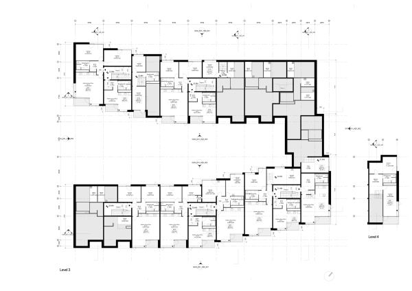
Grundriss 3. (und 4.) Obergeschoss
Bild: BIOSIS