Die Meldung in Bildern
Hinter goldenem Vorhang
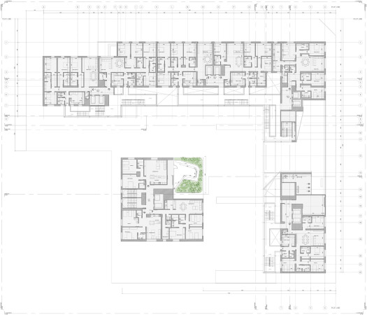
Wohnkomplex in Kuwait von AGi Architects
Bild 16/18
Ebene 1
Bild: AGi Architects