Wohnhaus, Frankreich, Boulogne-Billancourt, ZAC, Entwicklungsgebiet, Beckmann-N’Thépé, ALIS, Locked-In-Syndrom, Locked-In-Syndrome, ZAC Seguin Rives de Seine, Paris, Javier Callejas, Olivier Amsellem, Christophe Valtin, enamelled glass

Bild 21/24

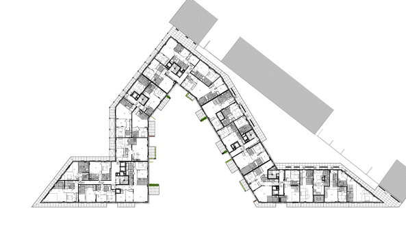
Grundriss 3. Obergeschoss