Die Meldung in Bildern
Schachtel hoch 32
Wohnhochhaus in Quito von BIG
Bild 16/17
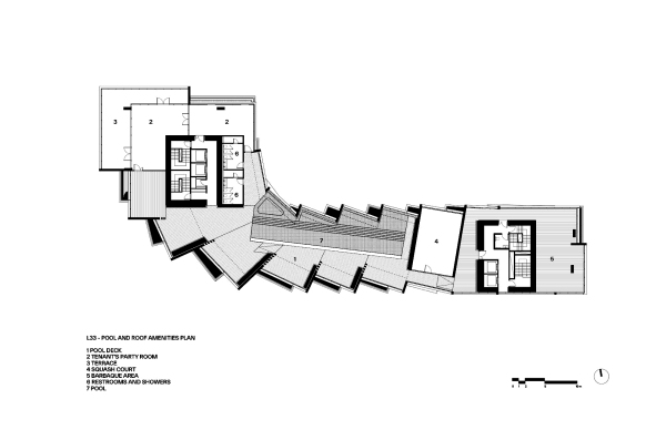
Grundriss Dachfläche mit Pools
Bild: BIG