Die Meldung in Bildern
Schachtel hoch 32
Wohnhochhaus in Quito von BIG
Bild 13/17
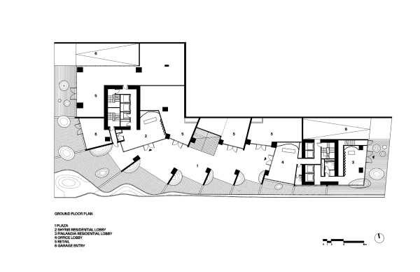
Grundriss Erdgeschoss
Bild: BIG