Wohnhochhaus in Curitiba von Architects Office + Triptyque
Bild 31/33
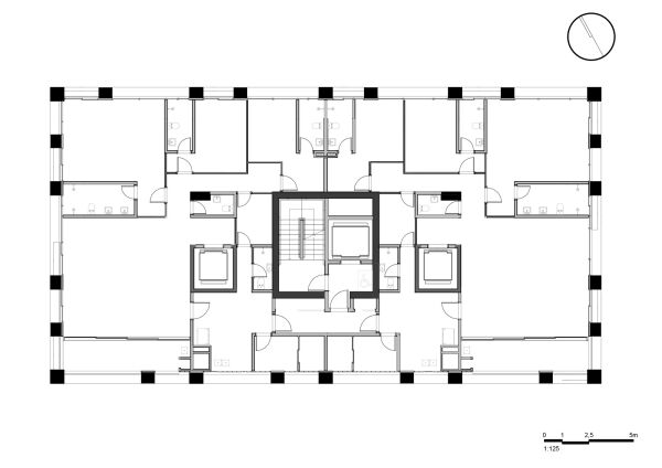
Grundriss Regelgeschoss
Bild: Architects Office + Triptyque