Wohnhochhaus in Curitiba von Architects Office + Triptyque
Bild 29/33
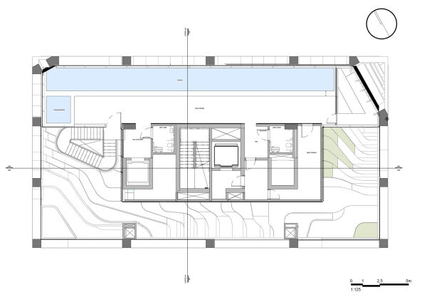
Grundriss Poolebene
Bild: Architects Office + Triptyque