Die Meldung in Bildern
Zackige Optik in Bratislava
Wohnhochhäuser von AllesWirdGut
Bild 38/41
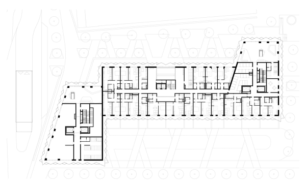
Grundriss Erdgeschoss
Bild: AllesWirdGut