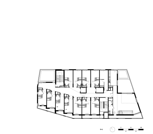
Paris, Frankreich, 2016, Brenac + Gonzalez,  Îlot Yersin, Paris Habitat, social residence, day hospital, senior housing, Alzheimer's center, concrete, ship

Bild 36/40

Bild: Brenac + Gonzalez