Die Meldung in Bildern
Terrassen-Mini
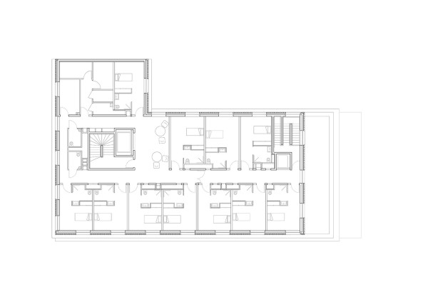
Wohnheim in Paris von Lambert Lénack
Bild 17/19
Grundriss 4. Obergeschoss
Bild: Lambert Lénack