Die Meldung in Bildern
Terrassen-Mini
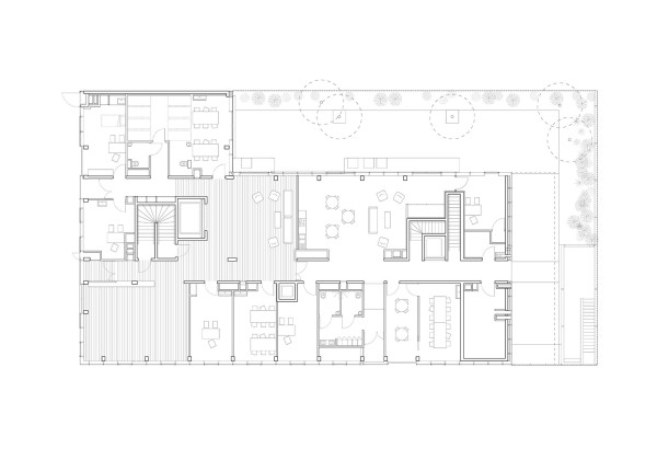
Wohnheim in Paris von Lambert Lénack
Bild 14/19
Grundriss Erdgeschoss
Bild: Lambert Lénack