Die Meldung in Bildern
Gut durchlüftet
Wohnheim in Bangkok von Plan Architect
Bild 27/40
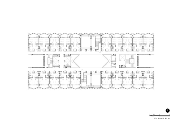
Grundriss 13. Geschoss
Bild: Plan Architect