Foyer la Grange, Couëron, 25 Boulevard François Blancho, 44220, Frankreich, Wohnheim, Altenresidenz, Alzheimer, Demenz, Betonsockel, Sockel, Ausblick, Balkon, Senioren, Unité Alzheimer, Nantes, Mabire Reich, architectes, Architekten, aufgeständert, Holz, Altenheim, Ruhestand, Rentner,

Bild 22/24

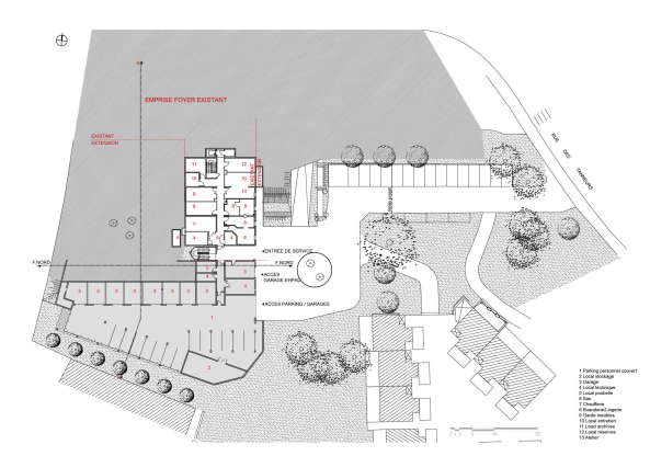
Grundriss Untergeschoss

Bild: Mabire Reich Architectes