Die Meldung in Bildern
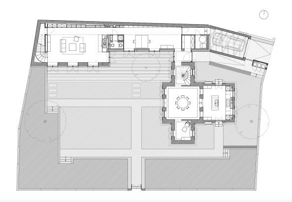
Anbau an Barock
Wohnhausumbau in Oppenheim
Bild 20/26