Wohnhausumbau in Kutná Hora von BYRÓ architekti
Bild 33/35
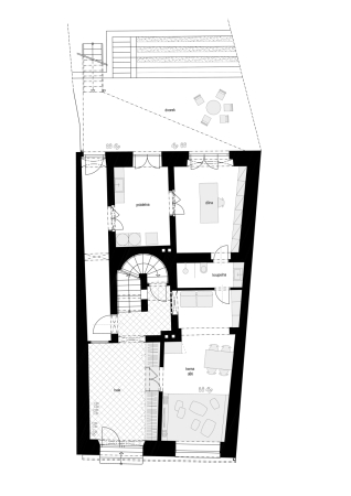
Grundriss Erdgeschoss
Bild: BYRÓ architekti