Wohnhausumbau bei Basel von Buchner Bründler Architekten
Bild 12/15
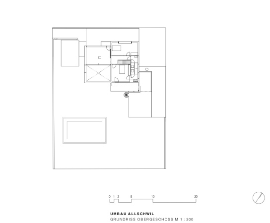
Grundriss OG
Bild: Daisuke Hirabayashi