Wohnhauserweiterung in Fribourg von Aviolat Chaperon Escobar Architectes
Bild 21/29
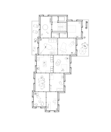
Grundriss 2. Obergeschoss
Bild: Aviolat Chaperon Escobar Architectes